ДОМ
170 м2

Представляем Вашему вниманию уникальный дом площадью 170 квадратных метров, выполненный в стильной фахверковой технологии. Этот проект идеально сочетает в себе современный дизайн и традиционные элементы, создавая уютное и комфортное пространство для жизни.

ДОМ
170м2

Основные характеристики:

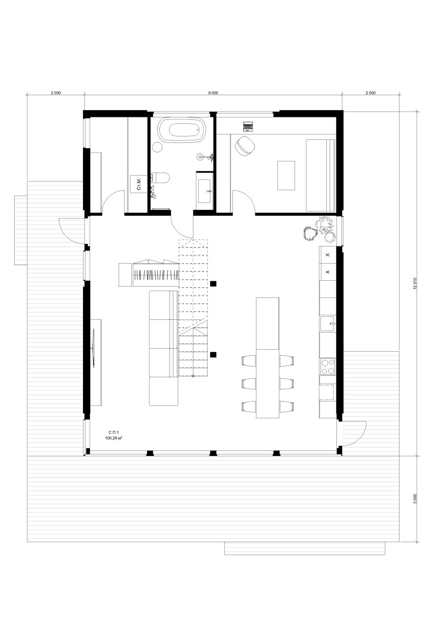
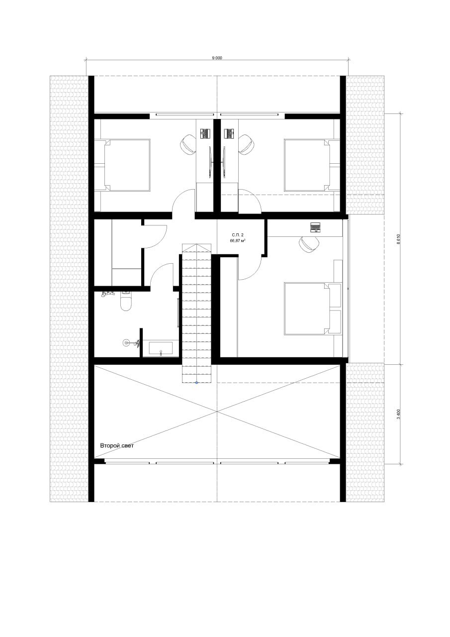
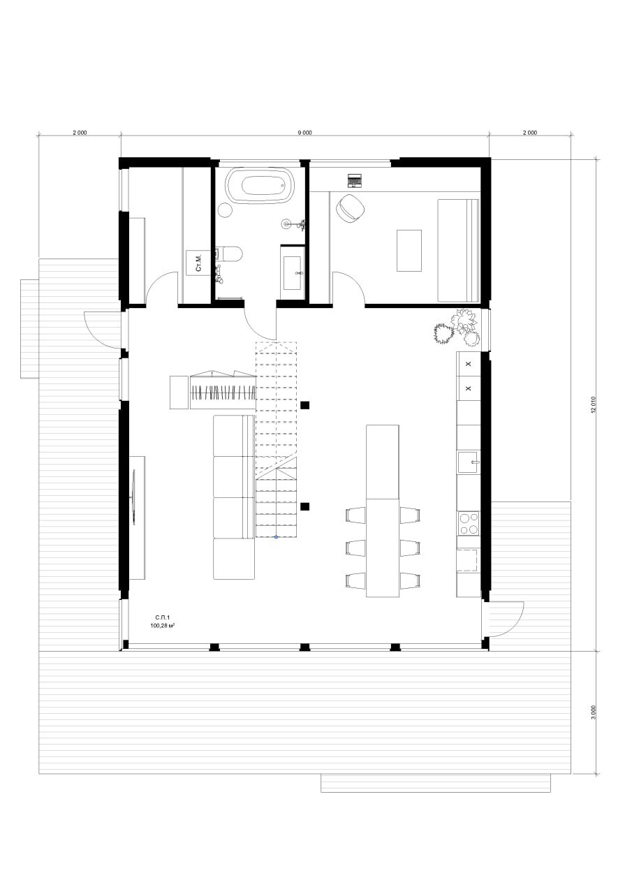
  • Площадь: 170 м²
  • Спальни: 2 или 3 (в зависимости от потребностей семьи)
  • Этажность: 2 этажа
  • Материалы: Деревянные каркасные конструкции, высококачественные изоляционные материалы

Дом включает светлую и просторную гостиную с большими окнами, которые обеспечивают естественное освещение и прекрасный вид на окружающую природу. Уютная кухня, оборудованная современными приборами, идеально подходит для семейных ужинов. Спальни создают атмосферу уюта и спокойствия, а возможность выбора между двумя или тремя спальнями позволяет адаптировать пространство под Ваши нужды.

Планировка:

Хотите получить подробную презентацию дома?

Хотите получить подробную презентацию дома?

Оставьте заявку на презентацию дома и получите её с возможными планировками и стоимостью строительства

Заявка

Имя *
Email *
Номер телефона *

© 2026 

Все права защищены

Все права защищены

© 2026