ДОМ
250 м2

Просторный двухэтажный дом площадью 250 м², выполненный по современной фахверковой технологии, сочетает в себе эстетику натурального дерева, панорамное остекление и высокую энергоэффективность. Архитектура с выразительным каркасом и большими окнами наполняет пространство естественным светом и создаёт ощущение единения с природой.

ДОМ
250м2

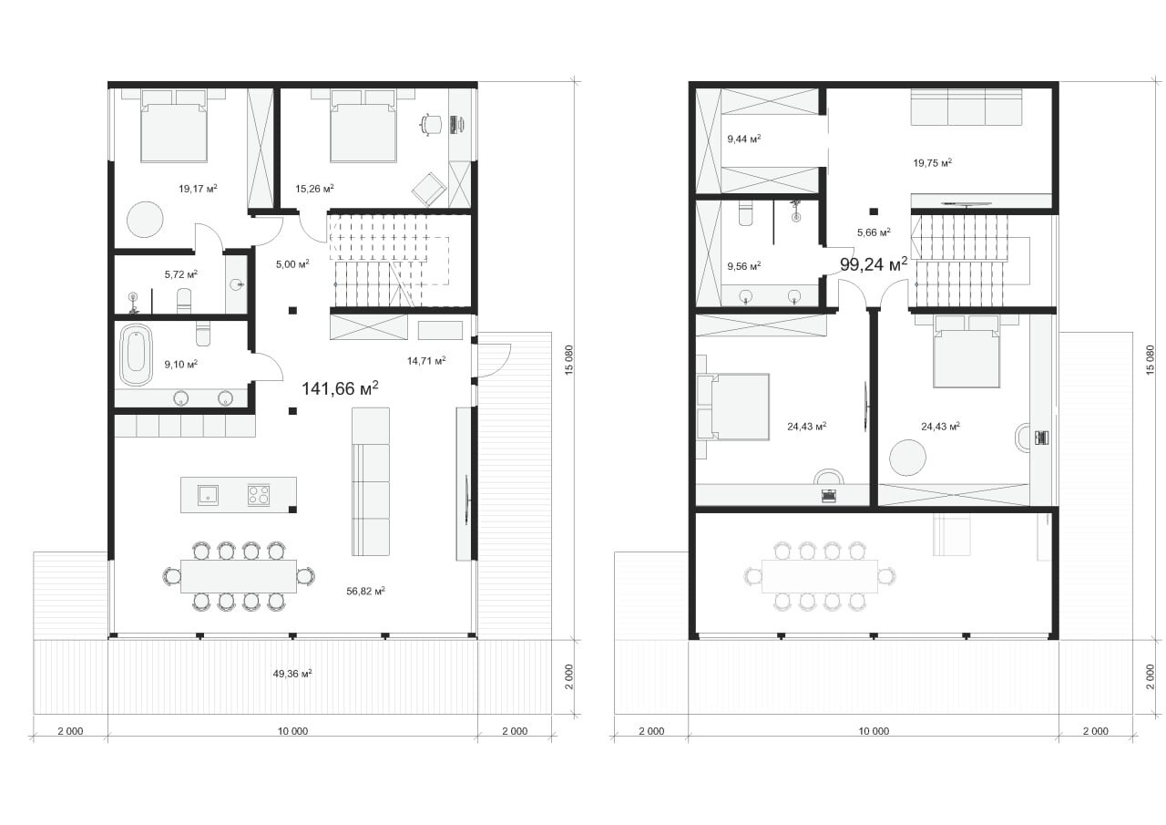
Основные характеристики:

  • Площадь: 250 м²
  • Спальни: 3 или 4 (в зависимости от потребностей семьи)
  • Этажность: 2 этажа
  • Материалы: Деревянные каркасные конструкции, высококачественные изоляционные материалы

Планировка предусматривает 3–4 просторные спальни, включая мастер-спальню с собственной ванной и гардеробной. На первом этаже расположена светлая кухня-гостиная с выходом на террасу, гостевая комната или кабинет, санузел и технические помещения. Второй этаж отведён под приватную зону отдыха.

Дом идеально подойдёт для постоянного проживания семьи, ценящей комфорт, стиль и современные технологии строительства.

Планировка:

Хотите получить подробную презентацию дома?

Хотите получить подробную презентацию дома?

Оставьте заявку на презентацию дома и получите её с возможными планировками и стоимостью строительства

Заявка

Имя *
Email *
Номер телефона *

© 2026 

Все права защищены

Все права защищены

© 2026